Verhuurd:Prinsengracht 475-3, 1016 HP Amsterdam - Foto
Verhuurd
+18

Prinsengracht 475-3 1016 HP Amsterdam

  • Appartement
  • 3 kamers
  • 2 slaapkamers
  • 1 badkamers
  • Bouwjaar 1772
  • 90 m² gebruiksoppervlakte
  • Gemeubileerd
  • C Energielabel C

Beschrijving

***English translation below***
Prinsengracht 475-III

Prachtig gerenoveerd 3-kamer (2 slaapkamers) appartement gelegen op de 3e en 4e etage van een 16e eeuws grachtenpand. Het appartement is bereikbaar per lift of via het algemeen trappenhuis. Vanuit het appartement welke gelegen nabij de 9 straatjes heeft u een prachtig vrij uitzicht op de Prinsengracht en de Jordaan.

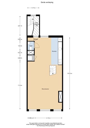
Omschrijving appartement:
Entree (middels lift en algemeen trappenhuis) op de 3e etage, gehele woning voorzien van visgraatvloer en inbouwspots, garderobekast, separaat toilet, wasmachine-/drogerruimte, open keuken voorzien van diverse inbouwapparatuur en Quooker. In de woonkamer gelegen aan de voorzijde heeft u een prachtig uitzicht op de Prinsengracht en de Jordaan, tevens is er een gezellige haard in de woonkamer aanwezig. Middels de interne trap is de 4e etage bereikbaar met 1 slaapkamer gelegen aan de voorzijde en 1 slaapkamer gelegen aan de achterzijde. Tevens is hier ook de badkamer met douche en wastafel gesitueerd.
Op de begane grond verdieping is een inpandige fietsenstalling.

Locatie:
Gelegen in de 9 straatjes, aan de Prinsengracht met zicht op de Jordaan. Op een paar minuten fietsen van het Vondelpark en het Leidseplein. Openbaar vervoer halte Elandgracht ligt op enkele minuten loopafstand. Vanaf Halte Elandsgracht zijn Tramlijnen 5, 7 en 19 alsmede buslijnen N82, N83, N84 en N88 bereikbaar. Een betere locatie kunnen wij niet bedenken.

Kenmerken:
- Huurprijs € 3.100,- excl. g/w/e
- Waarborgsom: € 6.200,- (2 maanden huur)
- Per direct beschikbaar
- Videofoon intercom
- servicekosten € 20,- per maand
- Fietsenstalling op de begane grond verdieping

Reageren:
Voor het inplannen van een bezichtiging en/of opmerkingen inzake deze woning kunt u contact opnemen met Horatio Makelaardij op 020 773 6337 of per mail info@horatio-makelaardij.nl

***English translation***
Prinsengracht 475-III
Beautifully renovated 3-room (2 bedrooms) apartment located on the 3rd and 4th floor of a 16th century canal house. The apartment is accessible by elevator or via the general stairwell. From the apartment, which is located near the 9 streets, you have a beautiful unobstructed view of the Prinsengracht and the Jordaan.

Apartment description:
Entrance (via elevator and general staircase) on the 3rd floor, entire house with herringbone floor and recessed spotlights, wardrobe, separate toilet, washing machine/dryer room, open kitchen with various built-in appliances and Quooker. In the living room located at the front you have a beautiful view of the Prinsengracht and the Jordaan, and there is also a cozy fireplace in the living room. The 4th floor is accessible via the internal stairs with 1 bedroom located at the front and 1 bedroom located at the rear. The bathroom with shower and sink is also located here.
There is an indoor bicycle shed on the ground floor.

Location:
Located in the 9 streets, on the Prinsengracht with a view of the Jordaan. A few minutes by bike from the Vondelpark and Leidseplein. Public transport stop Elandgracht is a few minutes' walk away. Tram lines 5, 7 and 19 as well as bus lines N82, N83, N84 and N88 are accessible from the Elandsgracht stop. We can't think of a better location.

Characteristics:
- Rental price € 3,100 excl. g/w/e
- Deposit: €6,200 (2 months rent)
- Available immediately
- Videophone intercom
- service costs €20 per month
- Bicycle shed on the ground floor

Comment:
To schedule a viewing and/or make comments regarding this property, please contact Horatio Makelaardij on 020 773 6337 or by email info@horatio-makelaardij.nl

Kaart

Kenmerken

Overdracht

Referentienummer
67
Huurprijs
€ 3.100,- per maand (gemeubileerd, gestoffeerd, geïndexeerd)
Borg
€ 6.200,-
Inrichting
Ja
Inrichting
Gemeubileerd
Status
Verhuurd
Aanvaarding
In overleg
Aangeboden sinds
Vrijdag 1 augustus 2025
Laatste wijziging
Dinsdag 26 augustus 2025

Bouw

Type object
Appartement, bovenwoning, dubbelbovenhuis
Woonlaag
3e woonlaag
Soort bouw
Bestaande bouw
Bouwperiode
1772
Dakbedekking
Dakpannen
Type dak
Zadeldak
Keurmerken
Energie prestatie advies

Oppervlaktes en inhoud

Woonoppervlakte
90 m²
Woonkameroppervlakte
56 m²
Inhoud
270 m³

Indeling

Aantal bouwlagen
2
Aantal kamers
3 (waarvan 2 slaapkamers)
Aantal badkamers
1 (en 1 apart toilet)

Energieverbruik

Energielabel
C

Uitrusting

Badkamervoorzieningen
Douche
Wastafel
Heeft een lift
Ja
Heeft een frans balkon
Ja
Heeft schuur/berging
Ja

Media

Plattegronden